盛岡市・滝沢市のアパート・マンション・貸家はアイアール不動産へおまかせください!お客様のご希望に合った物件探しをお手伝いいたします。
月~金 9:00 ~ 18:00 / 土 9:00 ~ 16:30
情報更新日:2026-04-30
| 所在地 | 間取 | 価格 | 専有面積 | バルコニー面積 |
|---|---|---|---|---|
| 岩手県 盛岡市 中央通3丁目 | 3LDK | 4,300万円 | 69.96㎡ | 9.57㎡ |
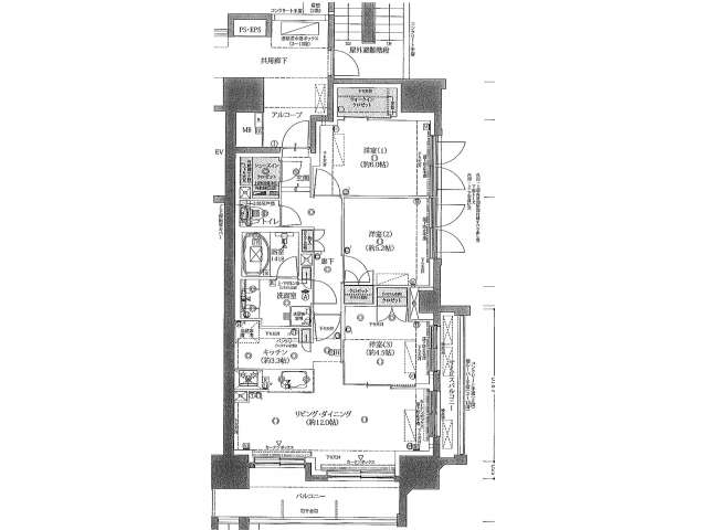
本物件の内容や画像等は全て現況優先とさせていただきます。各画像は参考図となります。
![]() |
![]() |
| 交通機関 | バス 啄木新婚の家口徒歩1分 | ||
|---|---|---|---|
| 学区 | |||
| 詳細間取 | 3LDK (洋6帖×1、洋5.2帖×1、洋4.5帖×1) | ||
| 周辺施設 | |||
| その他費用 | |||
| 総戸数 | 建物構造 | RC造 | |
| 築年月 | 令和5年2月 | 主要採光方向 | 不明 |
| 駐車場 | 駐車スペースなし | 地勢 | 平坦 |
| 駐車場複数台 | 不可 | 土地権利 | 所有権 |
| 用途地域 | 国土法届 | 不要 | |
| 取引態様 | 一般媒介 | 現況 | 空家 |
| 管理 | 日勤 (管理形態:全部委託、管理組合:有) | 建築確認番号 | |
| 管理費 | 6,030円 | 修繕積立金 | 18,950円 |
| 引渡 | 他 (要相談) | 借地料/借地期間 | ─ / ─ |
| 設備 | バス(有 ) トイレ(洋式 独立 水洗) 上水道設備(公営) 下水道設備 洗面化粧台(独立) 都市ガス エアコン | ||
| 備考 | ●駐輪場 200円/月額●修繕積立金にインターネット使用料を含む● | ||
| 取扱業者 |
㈱アイアール不動産 岩手県知事免許(3)第2513号 岩手県盛岡市開運橋通1番5号 TEL:019-601-8416 FAX:019-601-8417 (一社)岩手県宅地建物取引業協会会員 東北地区不動産公正取引協議会加盟事業者 |
||